Quadrilocale in vendita

Nola, Via feudo
€ 140.000
4 locali 4 locali
140 Mq 140 Mq
2 bagni 2 bagni

Quadrilocale in vendita

Nola, Via feudo

Descrizione annuncio

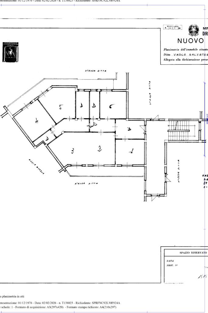
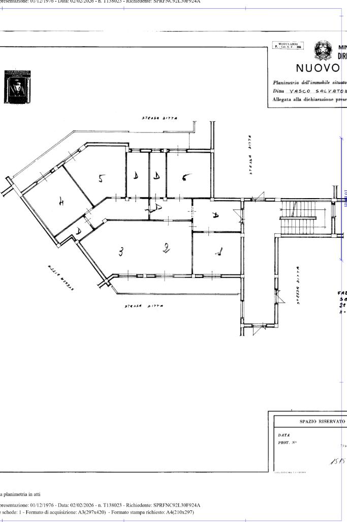
Nel cuore del comune di Nola, proponiamo in vendita un ampio appartamento di 145 mq, situato al piano rialzato di un edificio L'immobile, costruito e ristrutturato nel 1973, offre spazi ben distribuiti e funzionali. All'interno, troverete tre camere da letto luminose, due bagni, un soggiorno accogliente e una cucina abitabile. Completano la proprietà due balconi, ideali per momenti di relax all'aperto. L'appartamento dispone inoltre di una camera aggiuntiva, perfetta come studio o area hobby. Per il comfort quotidiano, l'immobile è dotato di aria condizionata. La proprietà include un box auto e un posto auto, garantendo comodità e sicurezza per il parcheggio. Questa soluzione abitativa rappresenta un'opportunità interessante per chi cerca spazio e funzionalità in una zona ben servita.



PER FISSARE IL TUO APPUNTAMENTO CONTATTACI ALLO 0818266565

Mostra tutto

Nelle vicinanze

Trasporto pubblico Trasporto pubblico
Saviano
Saviano
1,8 Km
stazione di Nola
stazione di Nola
2,0 Km
Scuole Scuole
Scuole
1,7 Km
Scuola Elementare Statale Tommaso Vitale
2,1 Km
Liceo Ginnasio Statale Giosuè Carducci
2,4 Km
I.T.I.S. Ambrogio Leone
2,6 Km
Istituto Tecnico Commerciale e per Geometri Masullo-Theti
2,8 Km
Farmacia Farmacia
Farmacia Santa Maria
2,7 Km
Ospedali Ospedali
Santa Maria della PietĂ 
2,4 Km
Bar Bar
Buccaneer Rum
2,3 Km
Keeper
2,3 Km
Ristoranti Ristoranti
AgriPub Terra Mia
1,2 Km
Pizzeria I Bruniani
2,0 Km
La Taverna dei Giglianti
2,0 Km
Metamorsi
2,1 Km
Zia Ernestina
2,2 Km
Mostra tutto

Caratteristiche

Rif.:
61159840
Piano:
1 di 2 con ascensore
Box:
1
Posti auto:
1
Balconi:
3
Camere da letto:
3
Mostra tutto
Prezzo Prezzo
€ 140.000
Rata mutuo Rata mutuo
€ 665 / mese
Spese annue Spese annue
€ 0
Proponi il tuo prezzoProponi il tuo prezzo

Classe Energetica

F
F
F
F
F
F
F
F
F
EP globale non rinnovabile:
100.00 kW h/m² anno
EP globale rinnovabile:
100.00 kW h/m² anno
EP invernale del fabbricato:
EP estiva del fabbricato:
Anno di costruzione:
1973
Riscaldamento:
Autonomo
Tipo impianto:
A radiatori
Tipo alimentazione:
GPL

Ti interessa visionare l'immobile?

Fissa un appuntamento  Fissa un appuntamento

Richiedi informazioni

Clicca su Leggi per aprire l'informativa
* Questi campi sono obbligatori

Calcola il tuo mutuo

Semplice e senza impegno
Anticipo

( % )
Mutuo

( % )

pochi semplici passi

inserisci i tuoi dati
Questionario completato
Grazie per aver richiesto un appuntamento senza impegno con un nostro Consulente del Credito e Assicurativo.

Hai inserito correttamente tutti i dati necessari e a breve riceverai una e-mail con un link da convalidare per inviare i tuoi dati.
Affiliato
Tecnonola Srl
Via Giacomo Imbroda, 85 80035 Nola (NA)

Il nostro staff


  • Chiara Abate
    Affiliata

  • Angela Corbisiero
    Coordinatrice

  • Giuseppina De Capua
    Collaboratrice

  • Venanzio Amoroso
    Responsabile

  • Giovannapia Napolitano
    Coordinatrice

  • Ivan Nuzzo
    Collaboratore

  • Veronica Vitale
    Collaboratrice
Via Giacomo Imbroda, 85 80035 Nola (NA)
Zona: Nola
Mostra su mappa
Orari: dal LunedĂŹ al VenerdĂŹ dalle 9:00 alle 13:00 e dalle 15:00 alle 20:00 mentre il Sabato dalle 9:00 alle 13:00 e dalle 15:00 alle 18:30
Affiliato
Tecnonola Srl
Via Giacomo Imbroda, 85 80035 Nola (NA)

2026 Tecnocasa Franchising S.p.A. - P. IVA 08365160152 - Via Monte Bianco 60/A 20089 Rozzano (MI). Ogni agenzia ha un proprio titolare ed è autonoma. Privacy policy | Policy utilizzo | Cookie policy